CORE TECHNOLOGY
核心技术
节约运行费用及能耗
高密度沉淀池采用高效搅拌器,效率比常规机械加速澄清池泵型搅拌器效率提高50%以上,一般机械加速澄清池一反G值约为400s-1,高密度沉淀池快速混合池搅拌池G值只有约200s-1,大大降低了输入能耗。
高密度沉淀池排泥浓度高,含水率约为90~92%,大大高于常规机械加速沉淀池(98%以上),有效减少了污泥排放量,污泥量减小4~6倍,降低了污泥脱水系统的运行负荷。另外,由于排泥浓度高,可不再设置污泥浓缩系统。
抗冲击负荷能力强
高密度沉淀池通过调整污泥回流量和搅拌强度,可以有效的降低来水水质及处理水量波动的影响,保证出水浊度变化很小。
而且由于絮凝效果良好,在水温很低和进水悬浮物很低的情况下,出水水质良好。
运行管理简便
高密度沉淀池系统采用先进的控制系统,通过程序控制系统自动运行,自动化程度高。为了保证良好的处理效果,可以根据来水水质和来水水量,自动调整搅拌器输入功率和加药量。系统运行稳定,操作管理工作量小。 而且高密度沉淀池混合、絮凝、沉淀分离各单元独立,可根据处理要求,便于针对性优化调整。
高密度沉淀池采用高效搅拌器,效率比常规机械加速澄清池泵型搅拌器效率提高50%以上,一般机械加速澄清池一反G值约为400s-1,高密度沉淀池快速混合池搅拌池G值只有约200s-1,大大降低了输入能耗。
高密度沉淀池排泥浓度高,含水率约为90~92%,大大高于常规机械加速沉淀池(98%以上),有效减少了污泥排放量,污泥量减小4~6倍,降低了污泥脱水系统的运行负荷。另外,由于排泥浓度高,可不再设置污泥浓缩系统。
抗冲击负荷能力强
高密度沉淀池通过调整污泥回流量和搅拌强度,可以有效的降低来水水质及处理水量波动的影响,保证出水浊度变化很小。
而且由于絮凝效果良好,在水温很低和进水悬浮物很低的情况下,出水水质良好。
运行管理简便
高密度沉淀池系统采用先进的控制系统,通过程序控制系统自动运行,自动化程度高。为了保证良好的处理效果,可以根据来水水质和来水水量,自动调整搅拌器输入功率和加药量。系统运行稳定,操作管理工作量小。 而且高密度沉淀池混合、絮凝、沉淀分离各单元独立,可根据处理要求,便于针对性优化调整。
(2)节省占地面积 在同等处理水量条件下,由于高密度沉淀池上升流速非常高,可以大量节约系统占地面积,高密度沉淀池一般占地面积为同等机械加速澄清池占地面积的50%。
高密度沉淀池工艺优点
(1)出水水质稳定及优异 高密度沉淀池设置多级絮凝,可以根据混合、絮凝反应、沉淀不同的速度梯度(G值),通过调整机械搅拌强度,提供适宜的水力条件,达到很好的絮凝效果,矾花生成效果要好于常规机械加速沉淀池。
而且通过污泥回流至絮凝反应池入口,为絮凝反应提供大量凝结核,加大絮凝反应碰撞效果,生成的矾花非常密实,能够快速与清水进行分离。
预沉浓缩池上方设置斜管澄清区,进一步有效去除微量的细小矾花,提升出水效果。
常规机械加速沉淀池出水浊度一般为5~10NTU,高密度沉淀池出水一般在1个NTU左右,大大减轻了后续滤池的运行负荷。
(1)出水水质稳定及优异 高密度沉淀池设置多级絮凝,可以根据混合、絮凝反应、沉淀不同的速度梯度(G值),通过调整机械搅拌强度,提供适宜的水力条件,达到很好的絮凝效果,矾花生成效果要好于常规机械加速沉淀池。
而且通过污泥回流至絮凝反应池入口,为絮凝反应提供大量凝结核,加大絮凝反应碰撞效果,生成的矾花非常密实,能够快速与清水进行分离。
预沉浓缩池上方设置斜管澄清区,进一步有效去除微量的细小矾花,提升出水效果。
常规机械加速沉淀池出水浊度一般为5~10NTU,高密度沉淀池出水一般在1个NTU左右,大大减轻了后续滤池的运行负荷。
去除水中绝大部分的钙、镁、碳酸氢根等结垢离子。
1高密度沉淀池去硬原理
可采用石灰软化处理。即:用石灰除去水中的碳酸盐硬。这种处理方法是向水中同时投加石灰,与水中的CO2和碳酸盐硬度(暂硬)反应。
2高密度沉淀池工艺流程
可采用石灰软化处理。即:用石灰除去水中的碳酸盐硬。这种处理方法是向水中同时投加石灰,与水中的CO2和碳酸盐硬度(暂硬)反应。
2高密度沉淀池工艺流程
高密度沉淀池技术
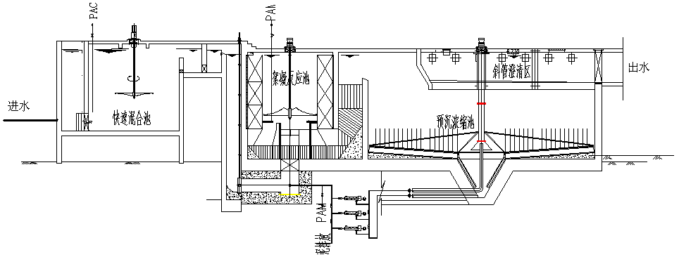
污水首先分别依次流入快速搅拌池,与混凝剂、石灰接触后进行混凝,快速搅拌器连续运行,以帮助混凝剂反应并避免矾花沉淀。药剂投加泵分别将混凝剂、石灰分别投加到快速搅拌池各室入口。通过变频器按照原水流量和需要的投加浓度来控制加药泵的运行。
经过加药的混合液通过管道进入絮凝反应池,在絮凝反应沉淀池内加入高分子助凝剂,并将后续预沉浓缩池部分污泥回流至絮凝反应沉淀池入口,加速矾花的增长及增加矾花的密度,提高沉淀效果。
絮凝反应沉淀池内设置一台慢速搅拌器,确保聚合物搅拌充足,矾花絮凝良好。如果转速过高,那么矾花就有被打碎的危险。
絮凝反应池出水进入高效澄清区,大部分矾花就在这里沉淀和浓缩。高效澄清区设置刮泥机一台,通过连续刮扫促进了沉淀污泥的浓缩,部分污泥通过污泥循环泵回流到絮凝反应池中,剩余污泥通过污泥排放泵排出系统外。斜管澄清区在高效澄清区顶部,用于去除残留的矾花和产生最终合格的水。
经过加药的混合液通过管道进入絮凝反应池,在絮凝反应沉淀池内加入高分子助凝剂,并将后续预沉浓缩池部分污泥回流至絮凝反应沉淀池入口,加速矾花的增长及增加矾花的密度,提高沉淀效果。
絮凝反应沉淀池内设置一台慢速搅拌器,确保聚合物搅拌充足,矾花絮凝良好。如果转速过高,那么矾花就有被打碎的危险。
絮凝反应池出水进入高效澄清区,大部分矾花就在这里沉淀和浓缩。高效澄清区设置刮泥机一台,通过连续刮扫促进了沉淀污泥的浓缩,部分污泥通过污泥循环泵回流到絮凝反应池中,剩余污泥通过污泥排放泵排出系统外。斜管澄清区在高效澄清区顶部,用于去除残留的矾花和产生最终合格的水。